Chargement…
coteparticuliers
Nouveau
Local commercial
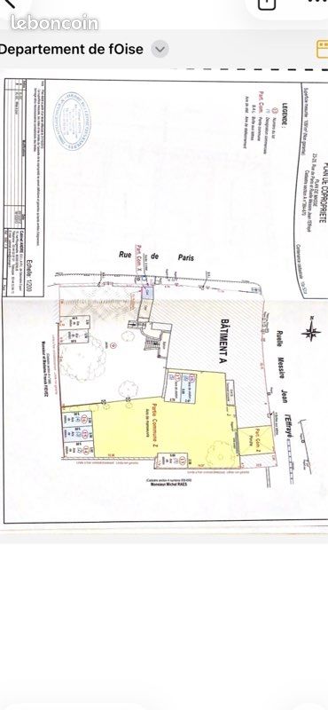
Terrain constructible de 1793m² et bâtiments La Primaube
Luc la Primaube
· 12450
400 m²
270 000 €
675 €/m²